Más ügyfelek is vásároltak
CSÁPOS EMELŐ 4T AUTOMATA + GURULÓ PROFESSZIONÁLIS SZERSZÁMOS SZEKRÉNY 215 CM
SEBESSÉGVÁLTÓ EMELŐ 500 KG MAGASSÁG 110-200 CM
INJEKTOR - PORLASZTÓ LEHÚZÓ PNEUMATIKUS PRÉS 1000 NM 21 DB BOSCH DELPHI DENSO SIEMENS
FÉKNYEREG VISSZANYOMÓ KÉSZLET 22 DB
SZERELŐBAK - TARTÓBAK 3 T REDATS
MOTORTARTÓ ÁLLVÁNY FORGATHATÓ 450 KG REDATS
MŰANYAG SZERELŐ RÁMPA PÁR 610 X 210 X 120 MM, 3 T HBM
FESZÍTŐVAS KÉSZLET 4 DB
FÉKFOLYADÉK LÉGTELENÍTŐ ÉS CSERÉLŐ 3 L GEBO TOOLS
T HAJTÓSZÁR – ERŐKAR 1/2” 60 CM
FÉKFOLYADÉK LÉGTELENÍTŐ ÉS CSERÉLŐ KROFTOOLS
VEZÉRLÉSRÖGZÍTŐ KÉSZLET - VAG TDI SDI 1.4 1.6 1.9 2.0
Leírás
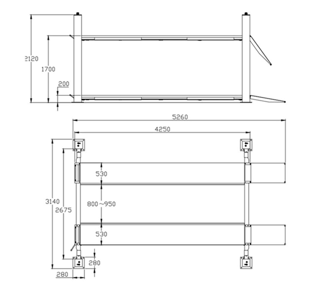
A NÉGYOSZLOPOS EMELŐ MANUÁLIS 4 T 380 V többek között a jármű állapotának diagnosztizálására és a különféle javításokra alkalmas. A 4250 mm hosszú rámpák tökéletes munkakomfortot biztosítanak az autók és szállítókocsik számára. Ennek az eszköznek az emelési magassága 1700 mm, ez a távolság lehetővé teszi a szabad munkavégzést az autó alváza alatt.
Mindkét emelőplatform 800-950 mm közötti távolságállítással rendelkezik, ez a megoldás lehetővé teszi a keskeny és szélesebb kerekű járművek méreteihez való igazítást. Ezenkívül a rámpák végein blokkolók vannak, amelyek megakadályozzák a jármű elgurulását. Az emelő teljes szerkezete nagyon masszív és stabil. A rámpák strapabíró hullámacélból készültek – nem hajlik meg vagy sérül meg rajtuk még több éves használat után sem. Ezenkívül az acél csúszásmentes anyag, így sokkal nagyobb biztonságot nyújt a munkavégzés során.
A felvonó speciális zárakkal van felszerelve, amelyek emeléskor automatikusan aktiválódnak. Emiatt nem áll fenn a lift hirtelen leereszkedésének veszélye munka közben. Másrészt a hidraulikus túlterhelés szelep figyeli azt a pillanatot, amikor a hidraulikus rendszerben a maximális nyomást túllépik.
A kialakítás és a súlyelosztás miatt a négyoszlopos emeleő padlóigénye alacsonyabb, mint a kétoszlopos felvonóké. Az alábbiakban felsoroljuk azokat a szabványokat, amelyeknek a padlónak meg kell felelnie:
- beton B30
- csatorna vastagság: legalább 15 cm
Műszaki adatok:
- Motorteljesítmény: 2,2 kW
- Típus: Félautomata
- Emelési magasság: 200 - 1700 mm
- Emelési idő: kb. 50 másodperc
- Csökkentési idő: körülbelül 50 másodperc
- Rámpa szélessége: 530 mm
- Rámpa magassága nyugalmi állapotban: 200 mm
- Rámpák hossza (rámpák nélkül): 4250 mm
- Rámpatávolság állítás: 800 - 950 mm
- Raid hossza: 1150 mm
- Biztonsági jellemzők: kötélszakadás elleni védelem, zárak a jármű mozgását megakadályozó, retesz alapú biztonsági rendszer, hidraulikus túlterhelés szelep, biztonságos 24V feszültségszabályozás
- Teljesítmény: 400V
- Olajtartály térfogata: 12L
- Szükséges olajmennyiség: 10L (a tartály 80%-a)
- Zajszint: <76 db
- Méretek (hossz x szélesség x ma): 5400 x 3140 x 2120 mm
- Garancia: 2 év (szerviztől függően)
- Megfelel az UDT minősítési követelményeknek: IGEN
- Maximális teherbírás: 4 tonna
- Súly: 1400 kg
Alert me if this item is restocked.
We often restock popular items or they may be returned by the other customers. If you would like to be notified when this happens just enter your details below.
NÉGYOSZLOPOS EMELŐ MANUÁLIS 4 T 380 V
Tiszteletben tartjuk az adatvédelmét, és nem osztjuk meg email címét senkivel.
Alert me if this item is restocked
A kérését töröltük.
Ez is érdekelhet
NÉGYOSZLOPOS EMELŐ 4 T 380 V + INGYEN OLAJ
MOTORKERÉKPÁR ÁLLVÁNY HÁTSÓ KERÉKHEZ REDATS
HIDRO-PNEUMATIKUS MOTORKERÉKPÁR EMELŐ ELSŐ KERÉK 450 KG
KÉTOSZLOPOS - CSÁPOS EMELŐ 4,2T ELEKTROHIDRAULIKUS KÉZI KIOLDÁSSAL 380 V REDATS + INGYEN OLAJ
KÉTOSZLOPOS - CSÁPOS EMELŐ AUTOMATA ZÁRKIOLDÁSSAL 4 T 380 V + INGYEN OLAJ
MOTORKERÉKPÁR ÁLLVÁNY HÁTSÓ KERÉK 250 KG HBM MACHINES HOLLAND PREMIUM
KÉTOSZLOPOS - CSÁPOS EMELŐ AUTOMATA ZÁRKIOLDÁSSAL 4 T 230 V + INGYEN OLAJ
HIDRAULIKUS MOTORKERÉKPÁR EMELŐ 500 KG PIROS HBM MACHINES HOLLANDIA
MECHANIKUS MOTORKERÉKPÁR EMELŐ 500K, PREMIUM
MOBIL OLLÓS EMELŐ VULKANIZÁLÁSHOZ 3 T 220V + INGYEN OLAJ
ELEKTROHIDRAULIKUS KÉTOSZLOPOS - CSÁPOS EMELŐ AUTOMATA ZÁRKIOLDÁSSAL SZIMETRIKUS 3 SZEGMENSES KAROKKAL 4 T 230 V L-240F REDATS + INGYEN OLAJ
KÉTOSZLOPOS - CSÁPOS AUTÓ EMELŐ 4,2T ELEKTROHIDRAULIKUS KÉZI KIOLDÁSSAL 230V REDATS + INGYEN OLAJ
Nemrég megtekintett termékek
Valódi tapasztalatok a Gebo Tools-szal















